0
Zum Inhalt springen
Ingenieurbüro für Bauwerksplanung | Jörg Brodbeck Dipl.-Ing. (FH)
Über mich
Projekte
Kontakt
Menü öffnen
Menü schließen
Ingenieurbüro für Bauwerksplanung | Jörg Brodbeck Dipl.-Ing. (FH)
Über mich
Projekte
Kontakt
Menü öffnen
Menü schließen
Über mich
Projekte
Kontakt
In Planung: Aufstockung von Gewerbebau mit 20 Wohneinheiten in Gomaringen.
Zurück
Zurück
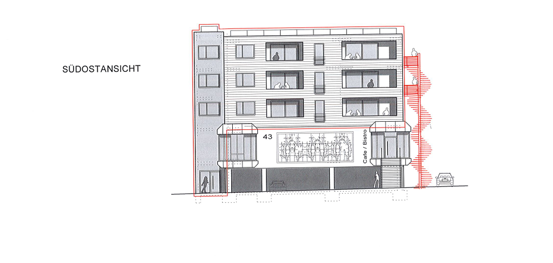
Mehrfamilienhaus mit Gewerbeeinheit